Immobilien Mieten

Sell

Hochhausen - Mehrfamilienhaus mit 6 Wohneinheiten in ruhiger Lage

Haßmersheim-Hochhausen

1040-HOVOL

9 Schlafzimmer
6 Badezimmer
1 Parkplätze

Hochhausen: Mehrfamilienhaus mit 6 Wohneinheiten in ruhiger Lage

Objekttyp: Haus
Objektart: Mehrfamilienhaus
Ort: 74855 Haßmersheim-Hochhausen
Preis: 799.000,00 €

Kontaktperson:
Herr Marko Winter
Winter Immobilien
Büro Am Sonnenrain 36
74821 Mosbach

Telefon: 06261/917654
Webseite: www.immobilien-winter.net
E-Mail: marko-winter@web.de


Objektbeschreibung

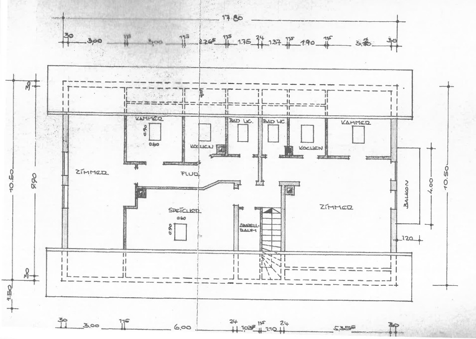
Im Erdgeschoss dieser ruhig gelegene Immobilie befinden sich eine 3-Zimmer- (72,5m²) sowie eine 2-Zimmer (59,5m²) Wohnung. Beide Wohnungen haben eine Terrasse mit Garten.

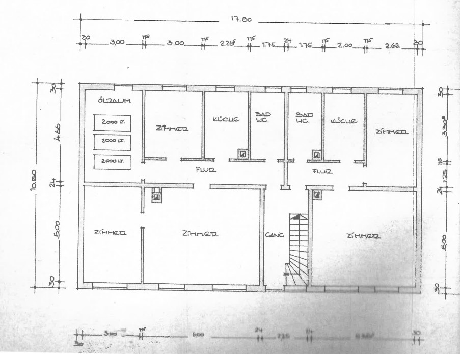
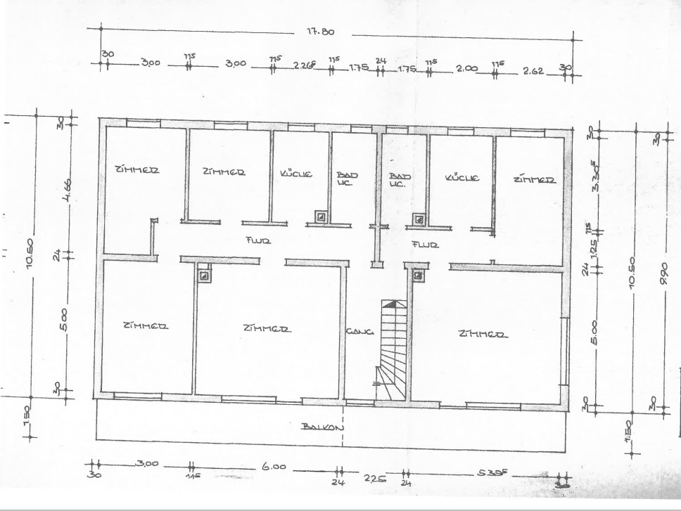
Im Obergeschoss befinden sich eine 4-Zimmer- (85,9m²) sowie eine 2-Zimmer (59,5m²) Wohnung. Beide Wohnungen verfügen über einen Balkon.

Im Dachgeschoss befinden sich zwei 2-Zimmer-Wohnungen (42,1m² bzw. 44,5m²), beide sind mit einem Balkon ausgestattet.

Vor der Immobilie stehen mehrere Stellplätze zur Verfügung die derzeit alle vermietet sind. Im Objekt selbst gibt es nur 1 Garage die ebenfalls vermietet ist. Durch diese gelangen Sie auch in die Abstellräume.

Es sind 4 Öltanks mit einem jeweiligen Fassungsvermögen von 2000 Liter vorhanden.

Derzeit sind 5 der 6 Wohnungen vermietet und es wird eine monatliche Kaltmiete i.H. € 2.330.- erzielt. Die noch leerstehende und neu renovierte Wohnung im Dachgeschoss links könnte für ca. € 450.- Kaltmiete vermietet werden.

Es liegt ein bedarfsorientierter Energieausweis vor. Der Endenergiebedarf beträgt 114,1kWh/(m²*a), Klasse D. Der Energieverbrauch für Warmwasser ist darin enthalten.
Baujahr lt. Energieausweis 1969.


Ausstattung

Die Immobilie wurde über die Jahre immer wieder renoviert/saniert, z.B. wurde die Heizung 1996/1998 ausgetauscht, es ist eine Öl-Zentral-Heizung (Viessmann) vorhanden.

2010 + 2013 wurden die Fenster erneuert, hierbei handelt es sich um 3-Fach-Verglasung, Ug0,6, SZR10 Isolierglas.

2012 wurde das Dach (Ziegel, Lattung und Isolierung), die Dachfenster sowie Dachrinne erneuert.

Zwischen 2007 und 2024 wurden sämtliche Renovierungs/Sanierungsmaßnahmen durch geführt, z.B. wurde die Fassade gestrichen, die Haustür erneuert, Sanierungsarbeiten an der Mauer durchgeführt, Balkongeländer erneuert, Innentüren erneuert, Boiler in einzelnen Wohnungen ausgetauscht.


Lage

Diese Immobilie befindet sich in einer ruhigen Sackgasse in Hochhausen.

Courtage zzgl. 4,76% aus Kaufpreis incl. 19% MwSt. Käuferprovision


Weitere Daten

Gesamtfläche ca. 364,00 m²
Grundstücksfläche ca. 936,00 m²
Zimmer 15
Schlafzimmer 9
Badezimmer 6
Balkon Ja
Terrasse Ja
Keller Ja
Garage Ja
Stellplatz Ja
Telefonanschluss Ja
Heizungsart Öl-Zentral, Strom-Mix
Objektzustand gut
Baujahr 1969
Verfügbar ab nach Vereinbarung
Etage 3


Referenznummer: 1040-HOVOL

Amenities

  • Garten
  • Terrasse
  • Garage/Stellplatz
  • Heizung
  • Keller
  • Balkon

Map

1040-HOVOL

Floor Plan

Erdgeschoss
Obergeschoss
Dachgeschoss

EMI Calculator

Image

Marko Winter

Winter Immobilien

Büro Am Sonnenrain 36

74821 Mosbach

Telefon: 06261/917654

E-Mail: marko-winter@web.de

Folge uns auf

We use cookies
Wir nutzen Cookies auf unserer Website. Einige von ihnen sind essenziell für den Betrieb der Seite, während andere uns helfen, diese Website und die Nutzererfahrung zu verbessern (Tracking Cookies). Sie können selbst entscheiden, ob Sie die Cookies zulassen möchten. Bitte beachten Sie, dass bei einer Ablehnung womöglich nicht mehr alle Funktionalitäten der Seite zur Verfügung stehen.