Immobilien Mieten

Sell

Mosbach - Das ist mal eine Aussicht - Einfamilienhaus mit Einliegerwohnung und Garage

Mosbach

1020-MOSBAU

6 Schlafzimmer
2 Badezimmer
1 Parkplätze

Mosbach: Das ist mal eine Aussicht! Einfamilienhaus mit Einliegerwohnung und Garage

Objekttyp: Haus
Objektart: Einfamilienhaus
Ort: 74821 Mosbach
Preis: 398.000,00 €

Kontaktperson:
Herr Marko Winter
Winter Immobilien
Büro Am Sonnenrain 36
74821 Mosbach

Telefon: 06261/917654
Webseite: www.immobilien-winter.net
E-Mail: marko-winter@web.de


Objektbeschreibung

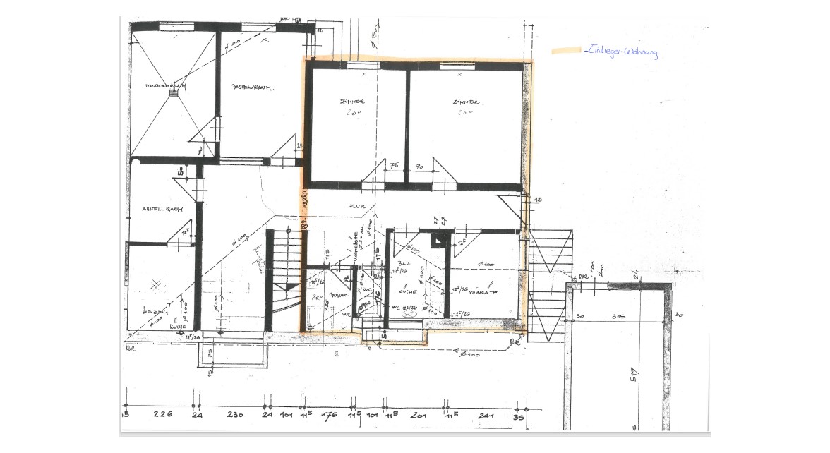
Diese zentral gelegene, altersgerechte Immobilie bietet zwei Wohneinheiten.

Im Erdgeschoss befindet sich die Hauptwohnung mit ca. 100m², diese umfasst ein Wohnzimmer, ein Esszimmer, drei Schlafzimmer, eine Küche, ein Duschbad sowie eine Gäste-Toilette. Der großzügige Balkon ist sowohl vom Wohnzimmer als auch von zwei Schlafzimmern aus begehbar. Über eine Treppe im Flur gelangen Sie in ein weiteres Zimmer, ein Kellerraum sowie den Heizungskeller.

Die Einliegerwohnung im UG mit ca. 67m² umfasst zwei Zimmer, eine Waschküche, eine Küche, ein Duschbad sowie eine separate Toilette und ist sowohl über einen separaten Eingang als auch über eine Verbindungstür im Keller begehbar.

Die Einliegerwohnung ist vermietet, Mietbeginn 01.11.2016, der Mieter befindet sich im ungekündigten Mietverhältnis. Die Warmmiete i.H. monatlich € 510.- umfasst sowohl die Kaltmiete (anteilig mit € 380.- als auch alle Nebenkosten ausser Nutzerstrom und Telefon-Anschluss mit anteilig € 130.-).

Zur Immobilie gehören eine Garage, ein Stellplatz im Hof vor dem Haus, ein Balkon sowie mehrere Terrassen. Die Immobilie befindet sich in Hang- und Aussichtslage.


Ausstattung

Die Öl-Zentral-Heizung (Buderus, Brennwert) mit zentraler Warmwasserversorgung wurde 2007/2008 erneuert. Ein verschweißter Öltank (ca. 7.000Liter) befindet sich unterhalb des Kellergeschosses. Im Wohnzimmer steht zusätzlich ein Pelletofen für gemütliche Abende zur Verfügung.

Über die Jahre wurden weiterhin folgende Renovierungen / Sanierungen durchgeführt:
2007 wurden die Fenster (und teilweise die Rolläden) erneuert.
2015 wurden die Heizkörper im gesamten Haus erneuert, eine neue Einbauküche (Hauptwohnung) wurde eingebaut und der Hof wurde neu gepflastert.

Es liegt ein bedarfsorientierter Energieausweis vor. Der Endenergiebedarf beträgt 234,1kWh/(m²*a), Klasse G.
Baujahr lt. Energieausweis 1965.


Lage

Die Mosbacher Innenstadt sowie der Bahnhof-West sind fußlälufig zu erreichen. Einkaufsmöglichkeiten wie z.B. Norma, Aldi, Kaufland etc. befinden sich in unmittelbarer Nähe.

Courtage zzgl. 3,57% aus Kaufpreis incl. 19% MwSt. Käuferprovision


Weitere Daten

Gesamtfläche ca. 199,00 m²
Grundstücksfläche ca. 881,00 m²
Zimmer 7
Schlafzimmer 6
Badezimmer 2
Gäste-WC Ja
Balkon Ja
Terrasse Ja
Keller Ja
Garage Ja
Stellplatz Ja
Telefonanschluss Ja
Heizungsart Öl-Zentral
Objektzustand gut
Baujahr 1965
Verfügbar ab nach Vereinbarung
Etage 3

Referenznummer: 1020-MOSBAU

Amenities

  • Terrasse
  • Garage/Stellplatz
  • Heizung
  • Keller
  • Balkon

Map

1020-MOSBAU

Floor Plan

Erdgeschoss
Obergeschoss
Carport

EMI Calculator

Image

Marko Winter

Winter Immobilien

Büro Am Sonnenrain 36

74821 Mosbach

Telefon: 06261/917654

E-Mail: marko-winter@web.de

Folge uns auf

We use cookies
Wir nutzen Cookies auf unserer Website. Einige von ihnen sind essenziell für den Betrieb der Seite, während andere uns helfen, diese Website und die Nutzererfahrung zu verbessern (Tracking Cookies). Sie können selbst entscheiden, ob Sie die Cookies zulassen möchten. Bitte beachten Sie, dass bei einer Ablehnung womöglich nicht mehr alle Funktionalitäten der Seite zur Verfügung stehen.